
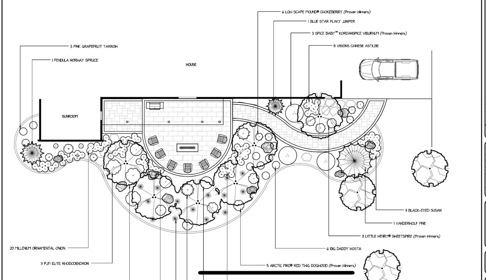
We're thrilled to share our latest landscape design vision, perfect for enhancing your home's exterior. With the highlight being a cozy patio complete with a fire pit, this plan promises warmth and comfort for all your gatherings.
We've crafted winding paths surrounded by beautiful plants such as Norway spruce and ornamental onion, adding both privacy and beauty. There's room for a sunroom, giving you a relaxing indoor-outdoor experience, and convenient parking to accommodate guests.
Spring is just around the corner, making it an ideal time to begin planning your landscape transformation. The thoughtful integration of our landscape design, paver patio, and planting services ensures a cohesive and inviting outdoor space. Let's collaborate to bring your dream landscape to life.